0

Appartement T 3 neuf Nancy Centre

Nancy (54000)
Réf : FAOMA80000512

De 242000 pour un T3 à 307 000 pour un T4, venez profiter de ces appartements disponibles au 1 er trimestre 2027, aux normes RE 2020, en plein coeur du quartier résidentiel "Les Rives de Meurthe", à 2 pas de la place Stanislas et des musées, des parcours en vélo et du club kayak et à 6 mn de la première station Tram. D'allure contemporaine, cette réalisation séduit par des façades aériennes, parée d’enduits aux nuances de beige, de blanc et d’ocre. L’ensemble est coiffé par des toitures en tuiles. Les balcons, loggias, et jardins privatifs sont présents pour offrir un agréable prolongement aux appartements. Ces espaces extérieurs sont soulignés par un jeu de bandeaux et de colonnes permettant aux plantes grimpantes d’investir les façades. La nature est aussi présente en cœur d’îlot, au sein d’un jardin arboré.

Pour tout renseignement : Anne FREISMUTH - RSAC Nancy 832 774 053 Contact: 06 19 42 06 12 afreismuth@immoverdeaux.fr

Prix du bien 242 000 €
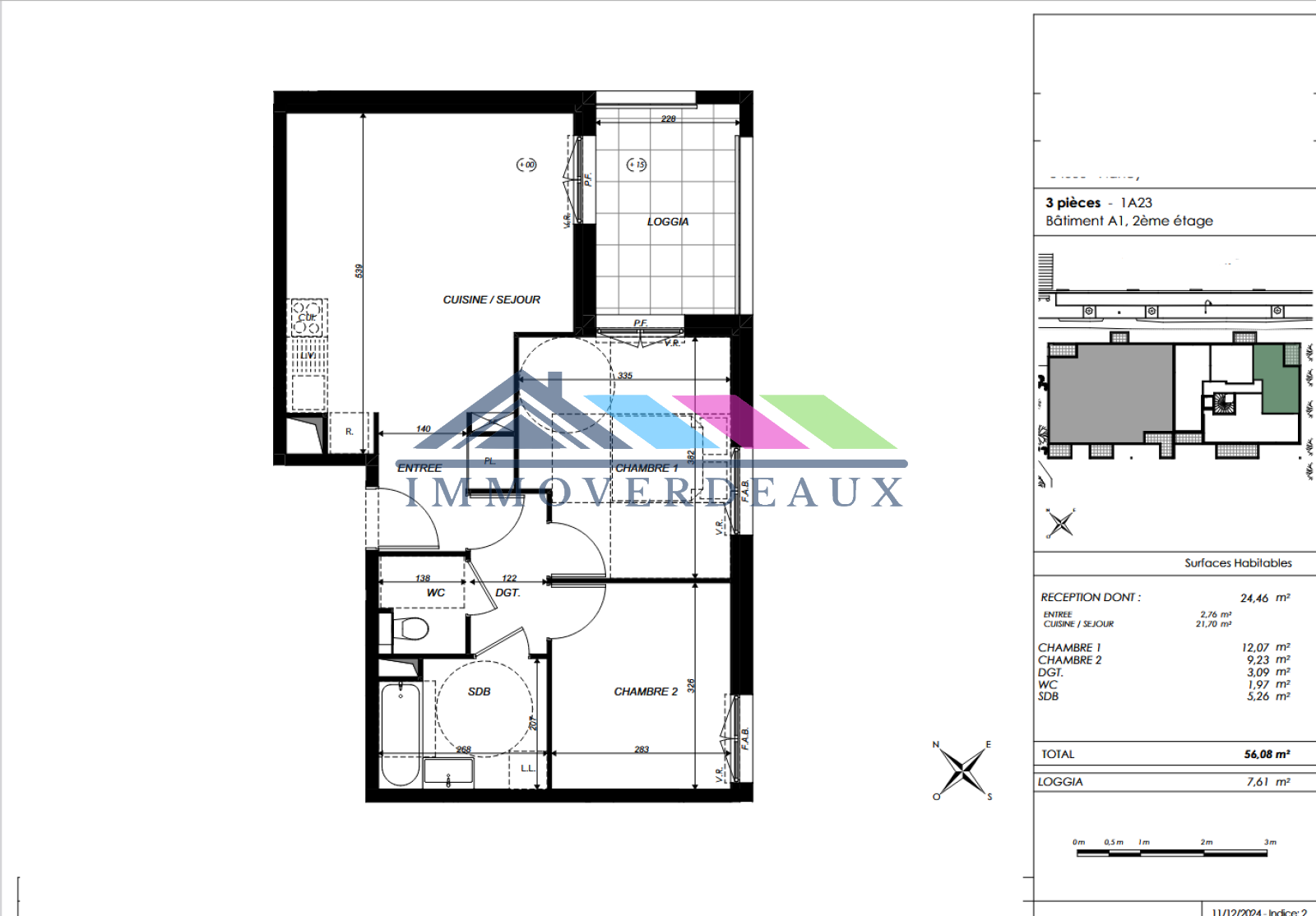
Pièce(s) 3
Chambre(s) 2

Caractéristiques du bien

Caractéristiques Valeurs
Code postal 54000
Surface habitable (m²) 56,08 m²
Surface loi Carrez (m²) 56,08 m²
Nombre de chambre(s) 2
Nombre de pièces 3
Nombre de niveaux 1
Vue Citadine
Nb de salle de bains 1
Cuisine Américaine
Type de cuisine Equipée
Mode de chauffage Autre
Type de chauffage TRAD_TYPE_CHAUFF_CHAUDIERE
Format de chauffage Collectif
Interphone OUI
Balcon NON
Loggia OUI
Murs mitoyens 2
Nombre de garage 1
Nombre de parking 1
Exposition Sud-Est
Année de construction 2027
Quartier ARTEM, centre ville, COURS LEOPOLD, Division de fer, fac de droit, fac de lettre, KINEPOLIS NANCY, RIVE DE MEURTHE

Infos financières

Caractéristiques Valeurs
Prix de vente honoraires TTC inclus 242 000 €

Bilans énergétiques

DPE GES
Ce bien vous est proposé par
Ce bien vous intéresse ?
Fieldset par défaut
Fieldset par défaut
Validation

* Champs obligatoires

Contacter l'agence
Validation
Les informations recueillies sur ce formulaire sont enregistrées dans un fichier informatisé par La Boite Immo agissant comme Sous-traitant du traitement pour la gestion de la clientèle/prospects de l'Agence / du Réseau qui reste Responsable du Traitement de vos Données personnelles. La base légale du traitement repose sur l'intérêt légitime de l'Agence / du Réseau. Elles sont conservées jusqu'à demande de suppression et sont destinées à l'Agence / au Réseau. Conformément à la loi « informatique et libertés », vous disposez des droits d’accès, de rectification, d’effacement, d’opposition, de limitation et de portabilité de vos données. Vous pouvez retirer votre consentement à tout moment en contactant directement l’Agence / Le Réseau. Consultez le site https://cnil.fr/fr pour plus d’informations sur vos droits. Si vous estimez, après avoir contacté l'Agence / le Réseau, que vos droits « Informatique et Libertés » ne sont pas respectés, vous pouvez adresser une réclamation à la CNIL. Nous vous informons de l’existence de la liste d'opposition au démarchage téléphonique « Bloctel », sur laquelle vous pouvez vous inscrire ici : https://www.bloctel.gouv.fr Dans le cadre de la protection des Données personnelles, nous vous invitons à ne pas inscrire de Données sensibles dans le champ de saisie libre.
Ce site est protégé par reCAPTCHA, les Politiques de Confidentialité et les Conditions d'Utilisation de Google s'appliquent.
Ces biens peuvent vous intéresser